House Makeover in Sevenoaks

This is one of those properly “multi-layered” projects where it’s not just about adding space — it’s about tidying up the whole house story so it works better, looks more balanced, and sits comfortably in a sensitive rural setting.

1) The Design Brief

This project was about giving the house a proper “next chapter” — more usable space, better flow, and an exterior that feels balanced and in keeping with the rural setting. The client wanted to improve how the home works day-to-day, upgrade the quality of the rear living spaces, and make sensible changes upstairs without the building starting to feel overdeveloped for the site.

In simple terms, the brief was to:

  • Rework the ground floor layout so the main living spaces feel more connected and practical.

  • Replace/improve the conservatory element so it becomes a better quality, more integrated part of the home.

  • Add a single-storey rear extension that improves living space and links the house to the garden.

  • Undertake roof and first-floor alterations as part of the overall upgrade, improving the building’s proportions and performance.

  • And because the scheme is multi-faceted and in a sensitive setting, we also prepared a Design & Access Statement (DAS) to clearly explain the design thinking for planning.

Sevenoaks Architect Design Brief

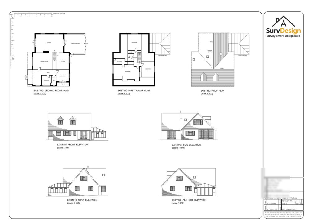
2) The Existing Layout

The existing house had a traditional rural feel and plenty of charm, but the internal arrangement wasn’t making the most of the footprint. The ground floor was more compartmentalised, with circulation that didn’t feel as smooth as it could be, and the conservatory sat off to the side as a separate “add-on” space rather than a seamless extension of the home.

Like a lot of conservatories, it provided extra room, but it didn’t give that solid, year-round, properly integrated living space that most families actually want — especially when you’re entertaining or trying to make the rear of the house the heart of the home.

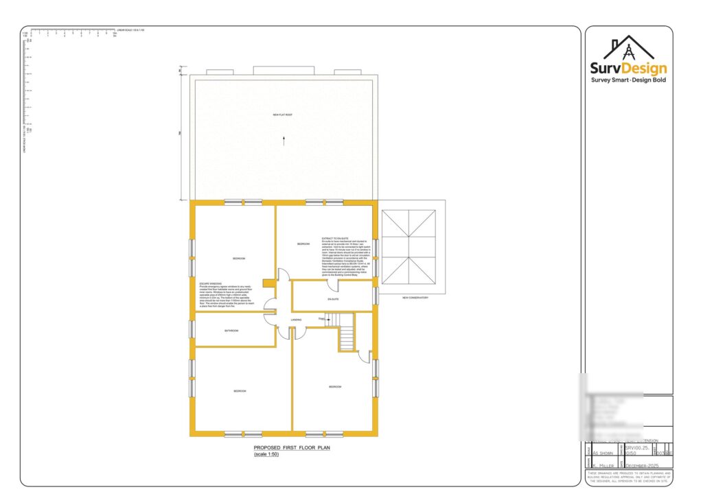
3) The Proposed Layout

The proposed design tidies up the way the house works inside and out, bringing everything together as one considered scheme rather than a set of separate changes over time.

On the ground floor, the layout is reorganised to create a more natural flow between key spaces, making the home feel easier to live in and better connected. The rear of the house is strengthened as the main “everyday” living zone, with improved links to the garden.

The conservatory element is rethought so it feels intentional and properly joined into the overall plan, and the new single-storey rear extension adds valuable, usable space without overpowering the original house.

Upstairs, the roof/first-floor works are designed to improve the building in a measured way — improving usability and performance, and helping the whole house feel more balanced.

Because this is a more complex job with planning sensitivities, the DAS supports the application by explaining:

  • why the changes sit comfortably in the rural setting,

  • how scale/massing has been kept under control,

  • the material choices, and

  • how the design improves the house without creating unnecessary visual impact.

4) External aesthetics and design

Externally, the focus was on delivering something that feels high-quality and rural-appropriate — not flashy, not “bolted on”.

A key part of the proposal is the roof alteration into a crown-top form (a hipped roof with a discreet flat top), finished in new clay tiles. This keeps the overall look traditional, while giving us a cleaner, more resolved roof shape that suits the house and helps the scheme read as one coherent design.

The rear extension is kept subservient to the main dwelling, with a simple flat-roof form that sits quietly behind and doesn’t compete with the original house. Material choices are sympathetic: brickwork to match the existing, and vertical tile hanging to reflect the character of the property.

The render shows the result: a house that looks more complete and well-proportioned, with a much stronger rear elevation and a better relationship to the outdoor space — all while keeping that countryside character intact.

Images Above Showing The Property Before

Complete House Makeover In Sevenoaks Kent
Single Storey Extension and Crown Top Roof Sevenoaks Kent

Images Above Showing The Finished Design

Are You Ready To Start Your Home Renovation Project?

If so, we could be surveying your home in no time at all

Some More Examples of Our Previous Work

What Makes Us The Gold Standard?

Get In Touch

Building 13, Thames Enterprise Centre, Princess Margaret Road, East Tilbury, Essex, RM18 8RH