Planning Drawings That Councils Can’t Say No To.

We turn your ideas into council-ready drawings that cut through delays and keep your build moving.

Most projects don’t get stuck with builders — they get stuck with planners.

You’ve got the ideas, the budget, even the builder lined up… but the council won’t even look at you without the right drawings. Get them wrong, and you’re in for delays, rejections, and a lot of wasted money.

But Now, the Good News…

The good news is we know exactly what planners want to see. We produce precise, council-friendly drawings that stand up to scrutiny. No drama, no endless back-and-forth — just plans that get approved, so you can finally get on with building the thing!

Sound good? Let’s walk you through it

It’s about as simple as it gets: four steps and you’re approved.

Step 4

We Scan Your Home

We pop round with our 3D LiDAR scanner and capture every nook and cranny with millimetre precision. No tape measures, no guesswork — just a perfect digital replica of your property, ready to become your plans.

Design Meeting

On the same day as your scan, you’ll sit down with your designer in the comfort of your own home. We’ll talk through your ideas, requirements, and the planning rules that apply — making sure everything’s clear before we even put pen to paper.

Step 3

We Get to Work

Our team turns your scan into precise, council-friendly planning drawings in as little as 14 days. No waiting months, no nasty extras — and unlimited design changes are included until it’s exactly right.

Step 4

Approvals Sorted

We handle the submission to your local council and stay on it until you’ve got a decision. No chasing emails, no sitting on hold — just a green light for your project without the headache.

Plans Approved. Clients Delighted. Google Agrees...

R
RVia Google
Review on behalf of my parents- Mr & Mrs Sparrow We were really struggling to get our Land Registry plans approved due to confusing and unhelpful advice from a solicitor. Then we spoke to Kev — and what a difference! With just one quick call, he clearly explained what needed to be done and suggested we submit both our own and our neighbour’s plans together. Thanks to his expert advice, everything was approved straight away. He completed the plans quickly, efficiently, and at a very reasonable price. No stress, no hassle — just a great service from start to finish. Absolutely brilliant. Highly recommend Kev to anyone needing Land Registry Compliant Plans.
Deni Nygate
Deni NygateVia Google
Kevin is flexible, listens to what has been asked. He is knowlegeable about ideas and suggestions and gives you leave options. The plans were clear to read and were done to a professional high standard. If you live in Essex and want a good value price then Kevin is the man to contact. My plans were submitted on Monday as the price is going out and they were done in a timely manner.
Charlotte Manson
Charlotte MansonVia Google
Kev from Surv Design was incredibly helpful when we needed land registry compliant plans drawn up for our leasehold property. After a couple of months when our buyers solicitor came back asking for revisions to be made, we received these within a couple of days. Thank you Kev for making a stressful process much easier! We are very grateful for your time and help!
Glen Carlos
Glen CarlosVia Google
Kev and the team have been amazing at working with me to ensure my planning application goes through smoothly. I live in a conservation area so it was daunting to even begin the process but Kev put me at ease straight away. Communication has been great and I would highly recommend Surv Design.
Pete Johnson
Pete JohnsonVia Google
My experience in dealing with Mr Kev Miller of Essex Architects and Party Wall Surveyors is one of thankfulness. Having discussed my problem with Kev, which he fully understood, I sent him some follow-up details which were used by him to give a quick response. I am extremely grateful for his time, knowledge and understanding in dealing with my problem.
Shouab Miah
Shouab MiahVia Google
I use them first time Mr kev Miller is the best man I ever seen and very reasonable price and very good service he handling our case smoothly he is very knowledgeable and friendly we got approved our side double extension and back 6 metre extension. Thank very much kev for your hard work.
Elizabeth Szkolny
Elizabeth SzkolnyVia Google
Excellent service from Kev and Millie at Surv Design. Would not hesitate to recommend them to anyone.
Roger Essex
Roger EssexVia Google
Straight forward talking and great communication from start to finish. Highly recommended for your project.
Included as Standard Traditional Local Architect Online-Only Architects SurvDesign
Fixed, transparent pricing Not included Included Included
Unlimited design revisions Not included Not included Included
Immediate project start Not included Included Included
3D LiDAR property scanning Not included Included Included
Local knowledge & planning expertise Included Not included Included
Meet your designer face-to-face Included Not included Included
Remote/online meetings available Not included Included Included
Council submissions handled for you Not included Not included Included
Everything under one roof (Party Wall, Land Registry, CAD) Not included Not included Included
Personal, local service Included Not included Included
Planning Drawings

“Planning permission relies on clear, accurate drawings that demonstrate how your proposal fits its context and meets local policy. SurvDesign produces precise site, floor and elevation plans for householder and full planning applications, with coordinated documents that help approvals go smoothly..”

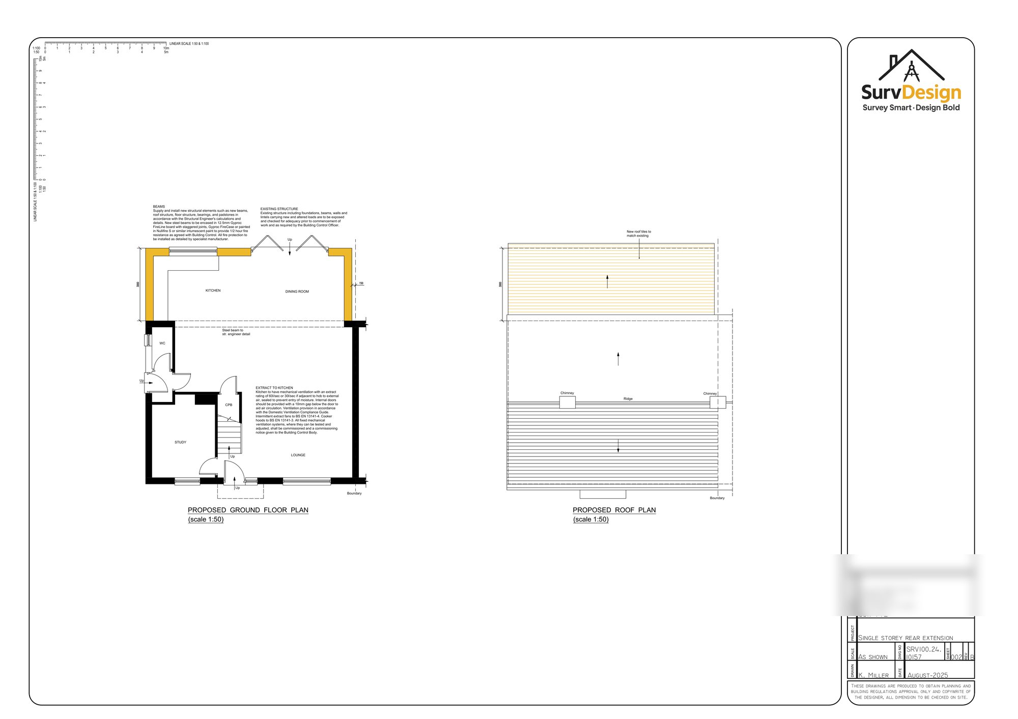
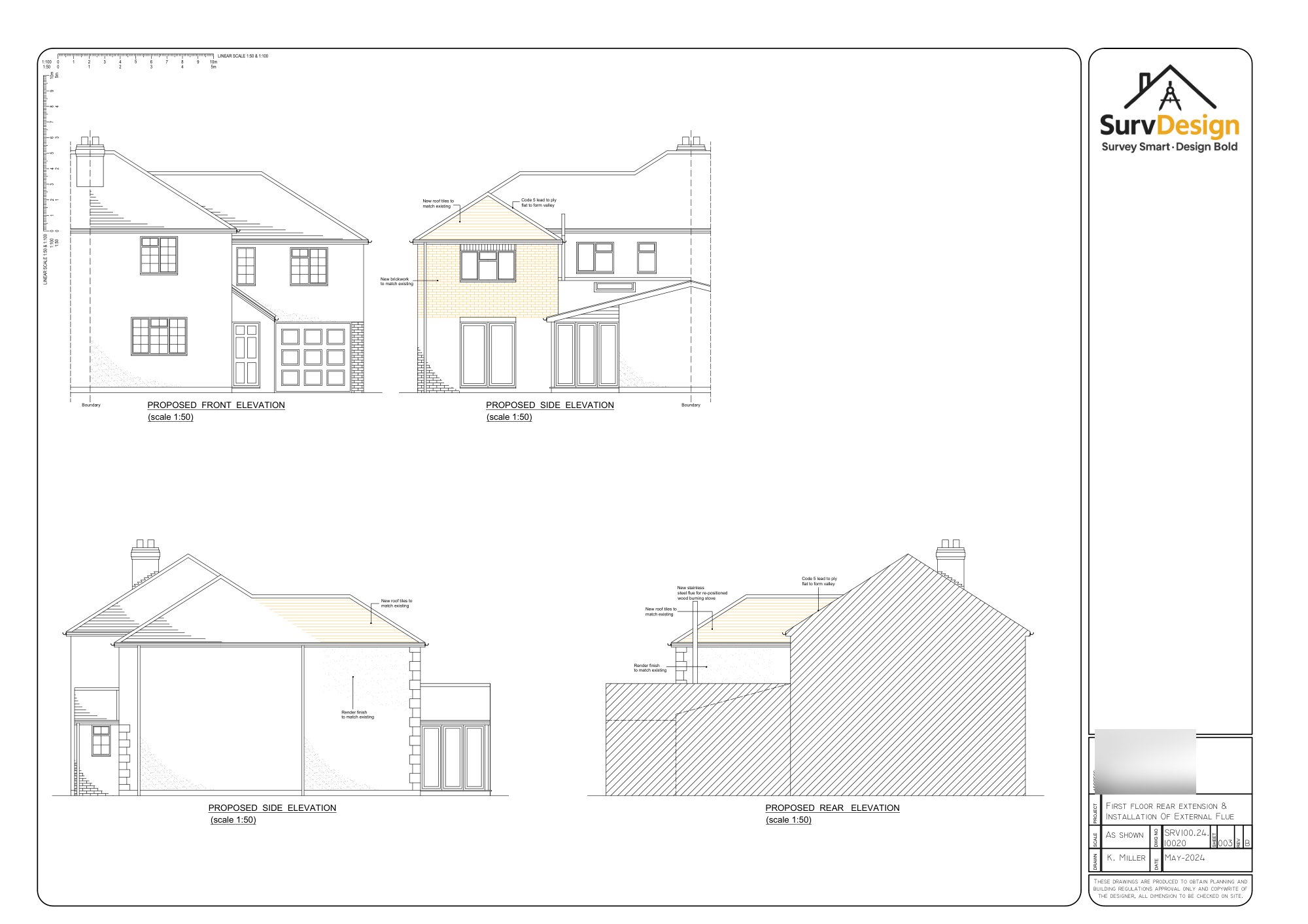
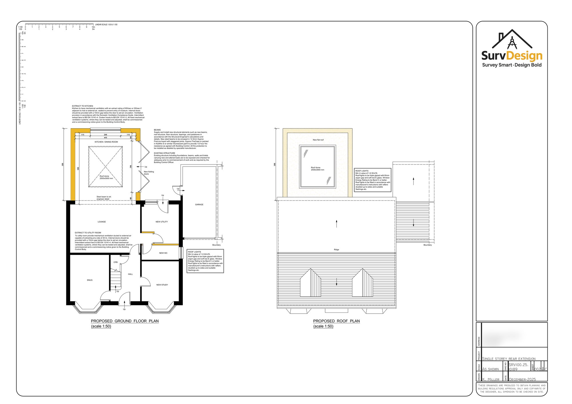
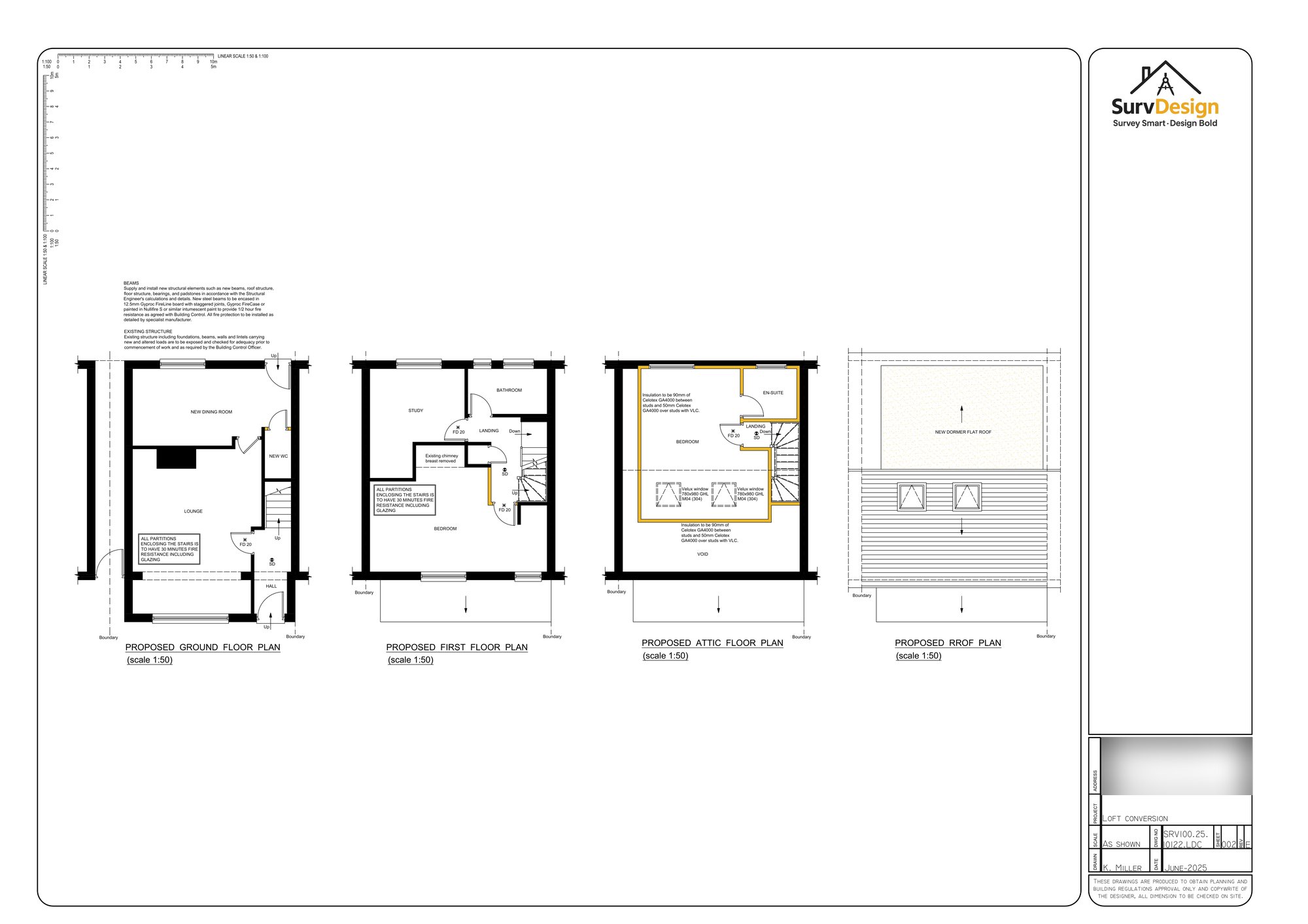
What Are Planning Drawings?

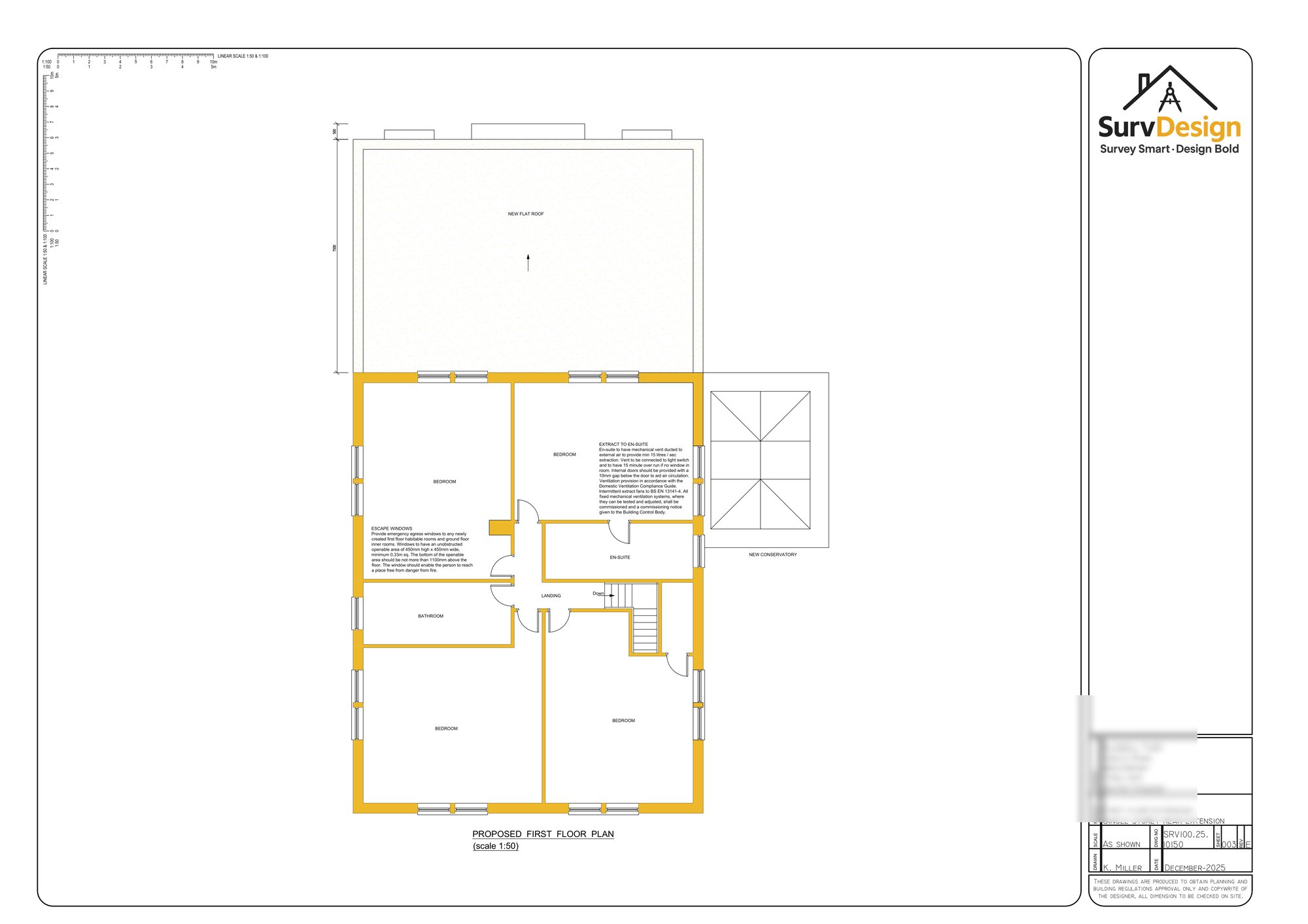
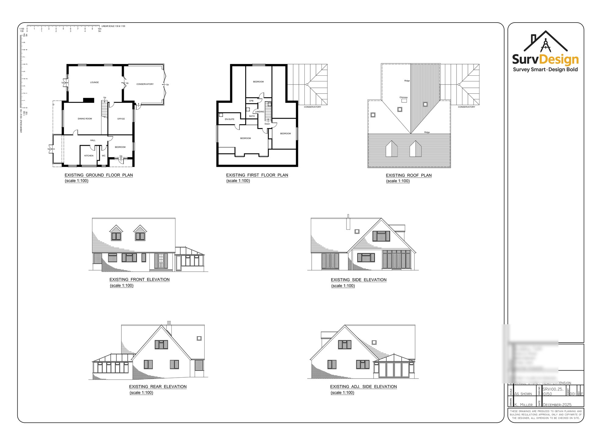
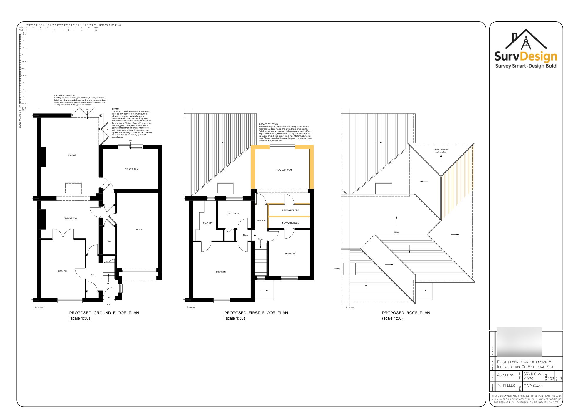
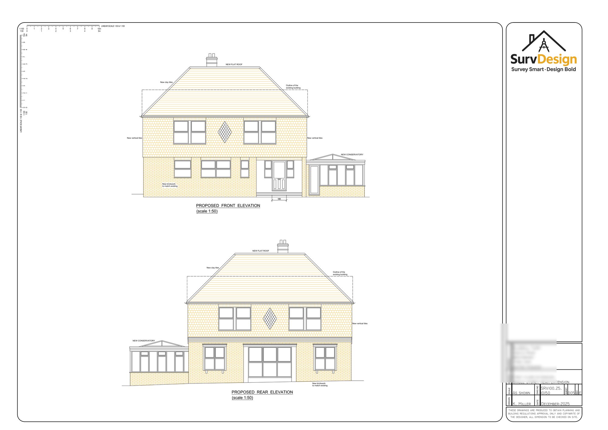
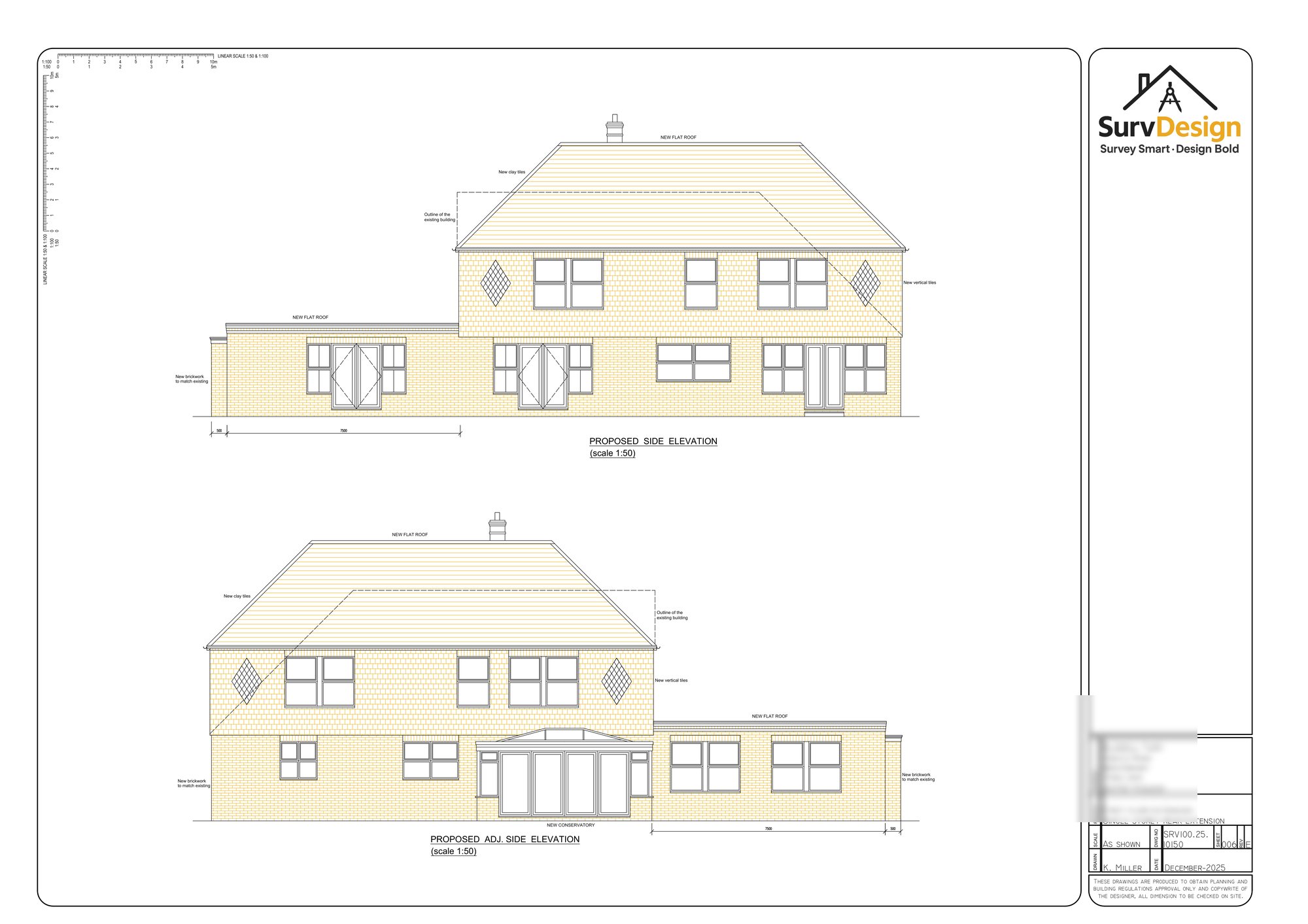
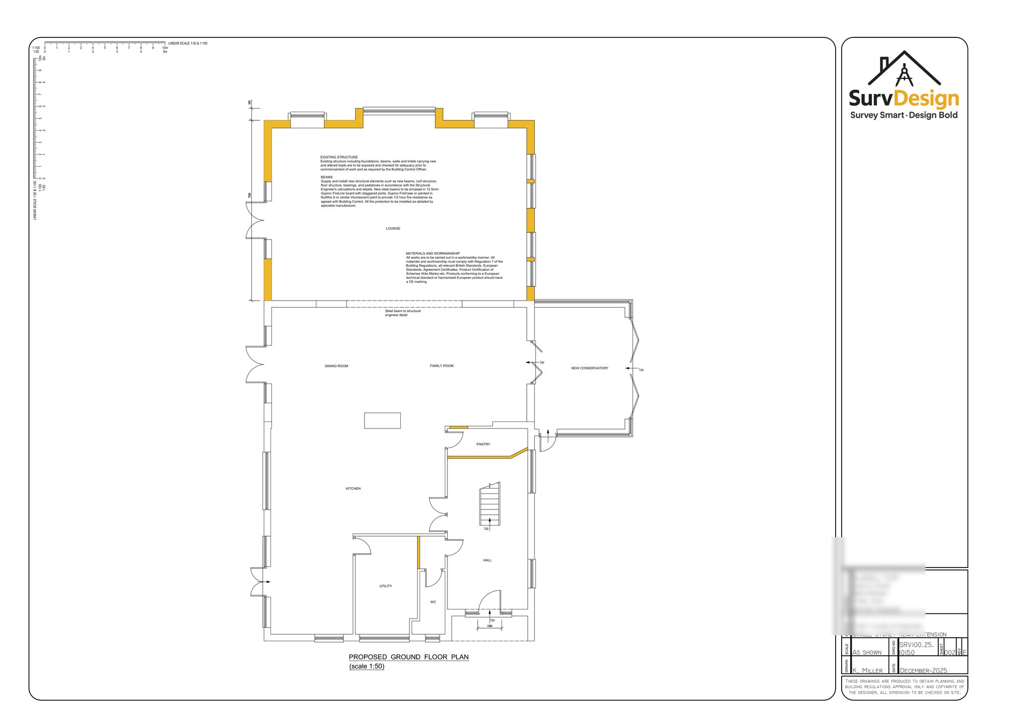
Planning drawings are the visuals a council assesses when deciding whether to grant permission. They illustrate scale, massing, appearance and how the proposal relates to neighbours and the street scene.

What your application pack includes

  • Location & block plans to the correct scales with north point and boundaries.

  • Existing & proposed floor plans with key dimensions, annotations and room uses.

  • Existing & proposed elevations/sections showing heights, materials and openings.

  • Roof plans & site levels where required.

  • Design & Access Statement (where needed), outlining rationale and policy fit.

Planning vs Building Regulations drawings

Planning drawings answer can we build it here? Building Regulations drawings answer how will it be built safely and compliantly? We can prepare both packages, ensuring a smooth handover to the technical stage.

Local policies, constraints & documentation

We align drawings with your council’s validation checklist and address constraints such as conservation areas, Article 4 directions, overlooking/daylight, parking and trees. Where relevant we coordinate consultants (heritage, flood, ecology).

Householder vs full applications

For home extensions and alterations, householder applications are common; new builds and commercial schemes typically need full applications. We’ll recommend the right route and advise on permitted development/Lawful Development Certificates if permission may not be required.

Our Process for Planning Applications

Briefing & measured survey

We review objectives, measure accurately (site visit or supplied survey) and confirm deliverables and timelines.

Concept options & feedback

We prepare options that balance space, daylight, outlook and privacy. You’ll receive mark‑up reviews before we lock the scheme.

Final drawings & submission support

We issue a coordinated set for validation and can submit on your behalf, then respond to planning officer queries during determination.

Why Choose SurvDesign for Planning Drawings

UK policy‑aligned, buildable detail

Efficient workflows with clear scopes — no surprises.

Clear communication from start to sign‑off

You’ll know what’s happening at every stage, with prompt updates.

FAQs

Do I always need planning permission?

Not always — many minor works fall under permitted development. We’ll confirm your options and advise if a Lawful Development Certificate is sensible.

What scales do you use?

Typically 1:1250/1:500 for location/block plans; 1:100 or 1:50 for plans and elevations, depending on site and council preference.

How long does a decision take?

Most councils aim for 8 weeks from validation for standard applications; timelines vary by workload.

What file formats will I receive?

PDF for submission/review and DWG for coordination. Others on request.

Can you revise drawings after officer feedback?

Yes. We provide iterative updates under our unlimited revisions guarantee.  We also handle resubmissions where required.

Get In Touch

Building 13, Thames Enterprise Centre, Princess Margaret Road, East Tilbury, Essex, RM18 8RH