First Floor Rear Extension + Garden Makeover — Surrey, England

(Bigger bedroom, built-in storage, and a proper “stay out here all evening” garden)

First Floor Rear Extension + Garden Makeover — Surrey, England

(Bigger bedroom, built-in storage, and a proper “stay out here all evening” garden)

1) The Design Brief

This one came about in a really natural way — the client already had a single storey rear extension, but as the family grew and needs changed, the upstairs started to feel a bit tight. The main ask was to enlarge her son’s bedroom so it felt like a room he could properly grow into, and to build in some decent storage so the bedrooms weren’t relying on freestanding wardrobes and bits of furniture everywhere.

Alongside that, the client wanted the outside to feel more “finished”. The existing rear extension had a monopitch roof and a grey rendered finish, and while it did the job, it didn’t really match the rest of the house or feel like it had been designed as part of a bigger picture.

So the brief became a bit of a two-parter:

  • Upstairs: add a first floor extension above the existing rear addition, creating more bedroom space and better storage.

  • Outside: improve the materials and overall look of the rear elevation so it feels cohesive, warmer and more premium — without going over the top.

And then the bonus round… the garden. The client wanted a garden that wasn’t just “a patch of outside”, but somewhere the family would actually use. The goal was to create a space for evenings, hosting, and relaxing — with privacy as a big priority.

Design Brief For Chelmsford House Extension

2) The Existing Layout

The original house had a fairly typical arrangement upstairs, with bedrooms that worked fine day-to-day, but didn’t offer much flexibility as the family’s needs shifted. The existing rear extension improved the ground floor space, but it also created an opportunity: structurally and visually, it gave us a footprint that could potentially be built over — as long as we handled the design properly and kept everything proportionate.

Externally, the rear addition had a simple mono-pitch form and a rendered finish that didn’t really tie in with the main house. It’s one of those situations where everything functioned, but it didn’t feel resolved. And when you’re investing in a first floor extension, it’s the perfect time to address that, because the rear elevation is about to change anyway.

Existing floor plans of a two storey house in Surrey

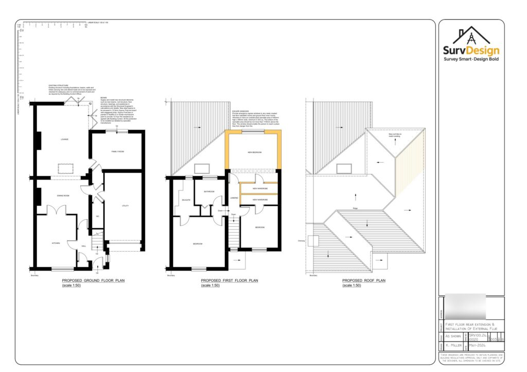
3) The Proposed Layout

The proposed solution was to add a first floor extension above the existing single storey rear extension, creating a larger bedroom footprint and allowing us to improve storage in a way that felt built-in and intentional.

A big part of making these projects work is keeping the layout simple — no gimmicks, no awkward leftover corners — just a plan that flows and feels natural. The new first floor space creates a much more generous bedroom, and we also introduced built-in wardrobes so storage is “designed in”, not bolted on later.

What that gives the client (and the family) is:

  • a bedroom that feels spacious rather than squeezed,

  • proper storage that reduces clutter,

  • and a layout upstairs that feels thought-through rather than patched together.

From a design point of view, we also made sure the new first floor addition sat comfortably with the existing roof forms. These sorts of extensions can look top-heavy if they’re not handled carefully, so the massing and roof tie-ins were considered from day one.

Proposed floor plans of a first floor extension in Surrey

4) External aesthetics and design

Now for the bit everyone notices straight away: how it looks from the garden.

Matching the house properly (without forcing it)

One of the key decisions was material choice for the new first floor walls. We talked through the usual options — render being the obvious one — but in the end it just didn’t feel right for this house. Instead, we went with yellow stock brickwork to match the existing ground floor level.

That choice does a few things:

  • It makes the extension feel like part of the original home, not a “new hat” on top.

  • It adds warmth and texture (especially in different light).

  • And it generally ages better than large areas of render, particularly on elevations that catch weather.

Giving the old extension a makeover

We also didn’t want the ground floor extension to be left behind visually. The existing mono-pitch element was improved by replacing the grey render with stacked stone cladding, which instantly lifted the whole rear elevation.

That stacked stone is doing a lot of heavy lifting aesthetically: it adds depth, breaks up the mass, and gives the extension a more “architect-designed” feel — especially when paired with good lighting.

Lighting and glazing that feels high-end (but still practical)

The finished rear view works so well because it’s not just about the walls — it’s about the atmosphere. The design uses large areas of glazing to connect inside to out, and the exterior lighting helps the house feel warm and welcoming in the evenings. It’s the difference between a garden you look at… and a garden you actually use.

Garden and Landscaping

This was the “wow” part of the project — and honestly, it’s the bit that makes the whole transformation feel complete.

The garden was landscaped to include a sunken seating area with a fire pit, creating a dedicated zone for evenings outside. Dropping the seating down slightly does two really smart things:

  1. It creates a feeling of shelter — like an outdoor room, not just furniture on a patio.

  2. It boosts privacy — because being slightly lower means sightlines from neighbouring gardens are reduced, so the occupants can relax without feeling overlooked.

Combined with the clean paving, subtle planting, and integrated lighting, it turns the garden into a proper extension of the house — perfect for hosting, family time, and those long summer evenings that always seem to arrive out of nowhere in the UK.

Images Above Showing The Property Before and After The Extension

First Floor Extension in Surrey by SurvDesign

Images Above Showing The Finished Design on a Barmy UK Summers' Evening

Are You Ready To Start Your Home Renovation Project?

If so, we could be surveying your home in no time at all

Some More Examples of Our Previous Work

What Makes Us The Gold Standard?

Get In Touch

Building 13, Thames Enterprise Centre, Princess Margaret Road, East Tilbury, Essex, RM18 8RH